
Architektur ist eine Sprache wie Deutsch, Englisch oder Mathematik, in der bestimmte Sachverhalte, Emotionen und Philosophien zum Ausdruck gebracht bzw. in Form von Gebäuden formuliert werden können. Häuser sind also die „Schrift“ der Architektur. Man kann sie lesen.
Wer diese Sprache beherrscht und das Lesen gelernt hat, oder wer zumindest ein paar Vokabeln kennt, für den eröffnen sich Welten der Kommunikation. Für solchermaßen gebildete Menschen ist es einerseits ein wirklich erhebendes Erlebnis, z.B. durch Rom oder Florenz zu flanieren und von all der geballten Weisheit und Einsicht überwältigt zu werden, allerdings ist es auf der anderen Seite sehr erschreckend zu beobachten, wie eine Masse von sehr ungebildeten Menschen mit einem Vokabular um sich wirft, das sie in keiner Weise versteht und dennoch verwendet. Sämtliche Neubaugebiete aller Städte in unserem Land sind randvoll mit dümmstem Gebrabbel und niveaulosem Geschwätz und hohlen abgedroschenen leeren Phrasen ohne Sinn und Zusammenhang.
Ich selber bilde mir nicht ein, die Sprache der Architektur rhetorisch meisterhaft zu beherrschen. Mein Studium war eine Art „Grundkurs“, und in der realen Welt des Bauens existiert kein besonders hohes Maß an sprachlicher Kultur, aber ich bemühe mich dennoch weiterhin, in klaren, einfachen Sätzen ohne gravierende grammatikalische oder inhaltliche Fehler zu sprechen.
Es spielt keine Rolle, ob mir bewusst ist, daß jedes Gebäude eine Aussage formuliert. Sobald ich entwerfe und baue, spreche ich.
In meinen Entwürfen möchte ich meine Sicht der Welt thematisieren und denen einen Dienst erweisen, die einen Abschnitt der Zeit ihres Lebens im Einflußbereich dieser Gebäude verbringen.
„7 Stages House“
Was wäre, wenn man keinen Kredit mehr aufnehmen müsste, um ein Haus zu besitzen? Was wäre, wenn sich das eigene Haus mit dem eigenen Leben weiterentwickeln könnte? Was wäre, wenn ein Haus keinen „Fußabdruck“ im Gelände mehr hinterlassen müsste?

„Vertical Park“
Was wäre, wenn in den Slums und Favelas dieser Erde Parks entstehen würden, die allen Menschen dort einen Ort der Freude, der Abwechslung, der Entspannung und der Förderung ihrer Talente geben?
Solche Parks müssten natürlich vertikal sein, weil sie an steilen Berghängen und zwischen superenger Bebauung entstehen würden.

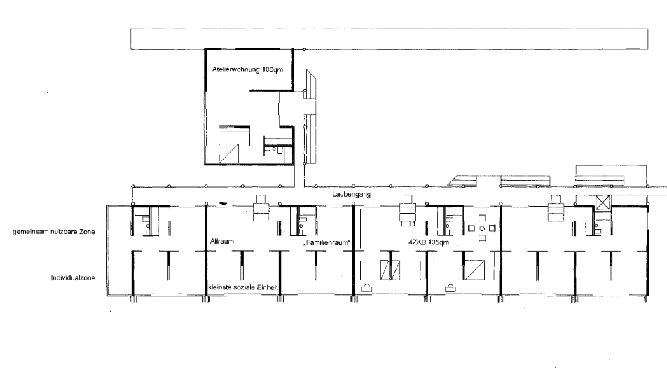
„Soziologie des Wohnens“
Was wäre, wenn Mehrfamilienhäuser und Wohnungen die Gemeinschaft der Bewohner aktiv fördern würden, anstatt sie zu verhindern? Dafür müssten Räume geschaffen werden, in denen Wohlfühlen und ungezwungene Begegnung Hand in Hand gehen. Zum Beispiel so:

„Südstadtstudentenloft“
Was wäre, wenn man die Luft in Baulücken mieten würde, um dort bezahlbaren Wohnraum für Studierende zu schaffen, ohne Einschränkung der vorhandenen Nutzung im Hinterhof? Durchfahrt und Durchblick bleiben erhalten.


